Ref # 2434299

Swakopmund , Kramersdorf | New Development, Modern living in Swakopmund

New Development – Only 11 Exclusive Units

Don’t miss this opportunity to own a luxury home.

Finishes & Features

Floors: Vinyl

Walls: Plastered and painted

Ceiling: Exposed concrete ceiling, sealed

Roof: Unigum or similar on pine T&G substrate

Doors & Windows: Charcoal powder-coated aluminium

Internal doors: Timber

Joinery:

White stone countertops

Built-in melamine cupboards

Sanitaryware: All sanitary fittings in black

Appliances: Oven, extractor, and hob – black

Washing machine: Dedicated points installed

Staircase: Exposed concrete staircase

Bathroom: Fully tiled

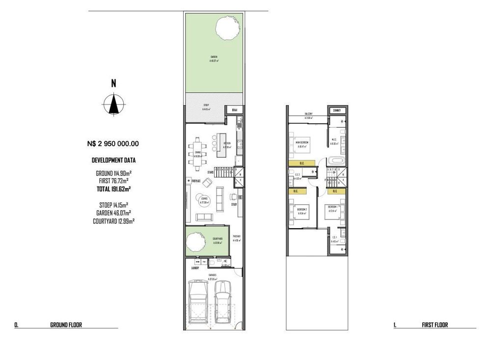
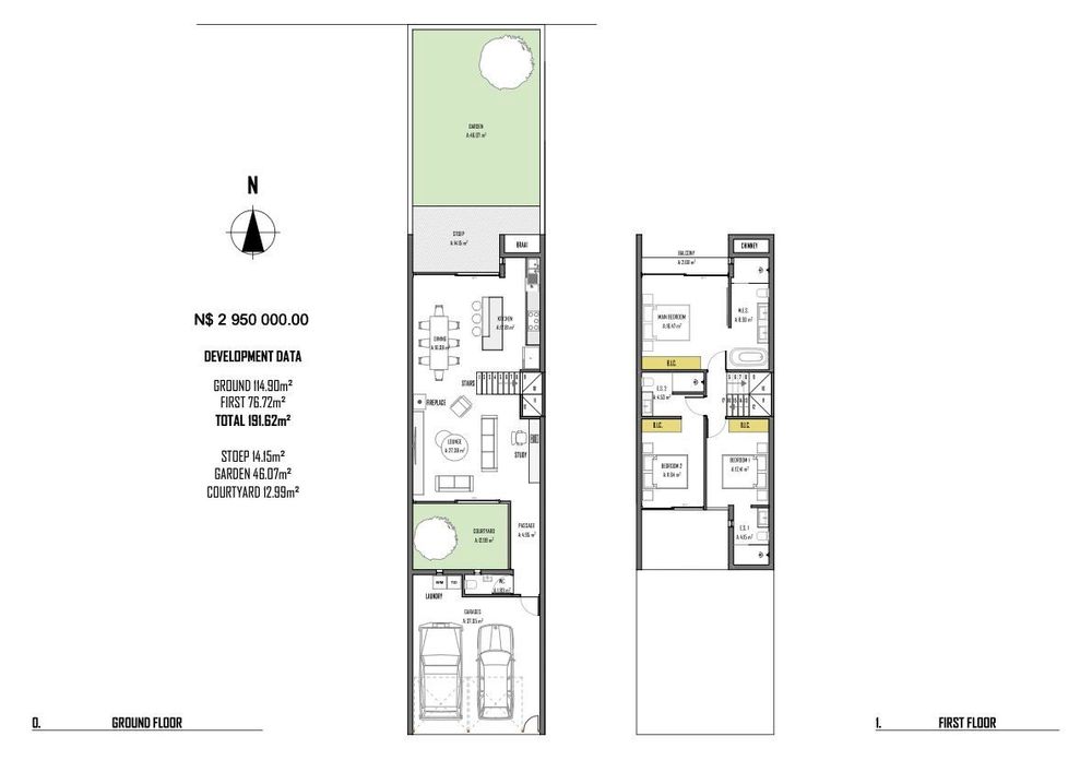
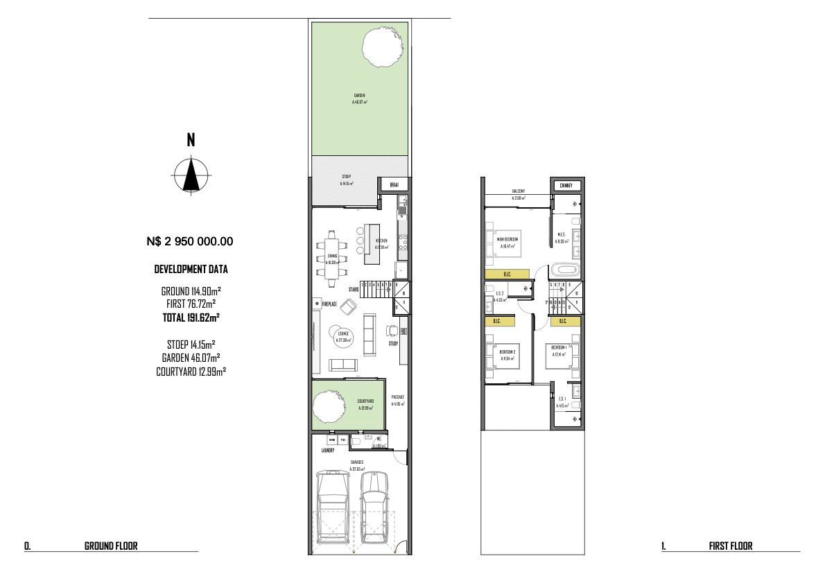
Financial & Development Details

Deposit: N$30,000 – payable within 7 days after signing the Offer to Purchase

Estimated levies: ± N$2,000 per month

Construction period: 12 months, commencing March 2026 (conditional on sales threshold being met)

Contribution: N$70,000 towards transfer fees included in the purchase price

(Covers transfer fees to natural persons if transferred to two individuals)

Contact us today at Desert Horizon Real Estate

Isabella Grobler photo
Isabella Grobler
+264 814 445 470
Make an enquiry
Interested in this property? Please fill in your details below, and we will contact you as soon as possible.
By clicking on "submit" you agree to our privacy policy.